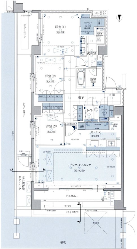
グランドメゾン渋谷大山町1階 / 42,000万円台 / 3LDK / 113.74㎡ / 売買募集中 / 弊社媒介 / 仲介手数料無料
契約時の【仲介手数料無料特典】と【家具・家電300万円相当額】を弊社よりご進呈させていただきます

■代々木上原駅徒歩8分 ■ハイブランド【Molteni&Cのシステムキッチン】3,000万円相当額を完備 ■【家具・家電300万円相当額】をご成約時に進呈させていただきます

■詳細や内覧については、お問い合わせ後すぐにご案内させていただきます。
■上田携帯電話【080-4008-4322】迄、24時間お気軽にお問い合わせくださいませ。
━━━━━━━━━━━━━━━━━━━━━━
■物件概要
□売 主:積水ハウス株式会社
□設 計:アーキサイトメビウス株式会社
□施 工:若築建設株式会社東京支店
□面 積:
□総戸数:20戸
□規 模:4階建 地下1階建
□交 通:東京メトロ千代田線・小田急線「代々木上原駅」徒歩8分
□交 通:小田急線「東北沢駅」徒歩6分
□所在地:東京都渋谷区大山町35
□竣 工:2026年1月
━━━━━━━━━━━━━━━━━━━━━━






| 社 名 住 所 交 通 TEL FAX | 株式会社SOLPIR 東京都中央区日本橋堀留町1-8-11 3階 日比谷線・浅草線「人形町駅」徒歩3分 03-6280-6572 03-6228-5543 | ||
|---|---|---|---|

